Lesson 14
Estimating Areas
Let’s estimate the areas of weird shapes.
14.1: Mental Calculations
Find a strategy to make each calculation mentally:
\(599 + 87\)
\(254 - 88\)
\(99 \boldcdot 75\)
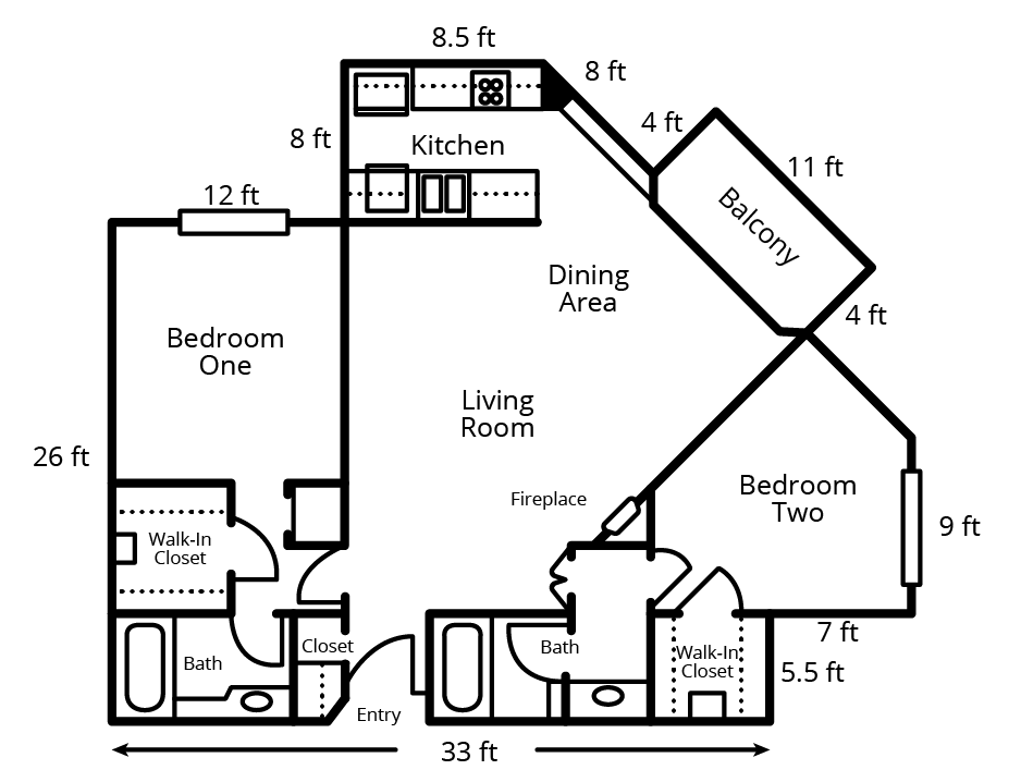
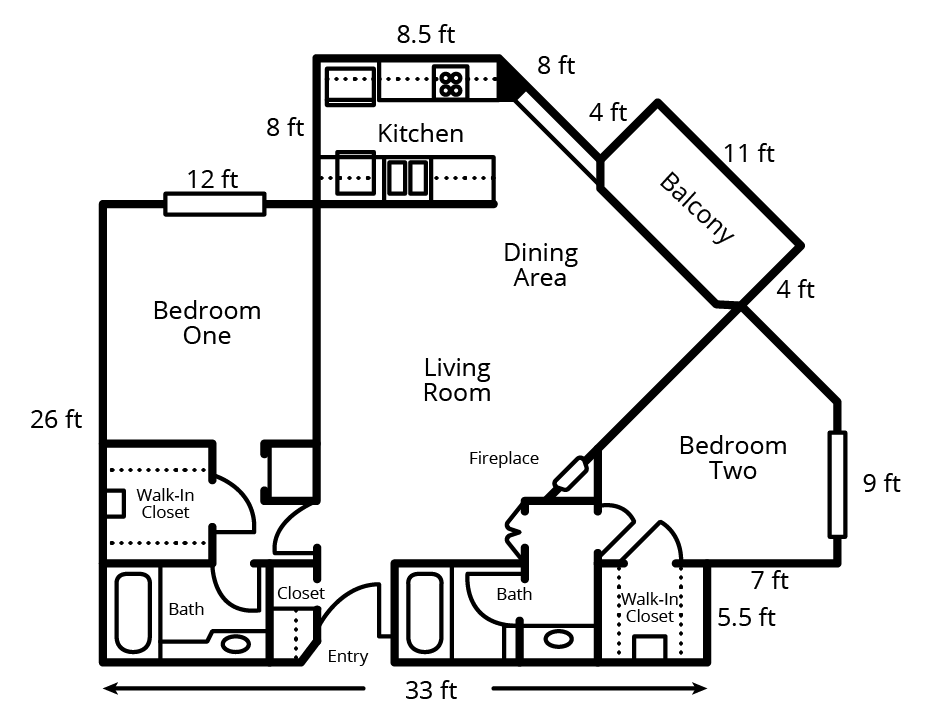
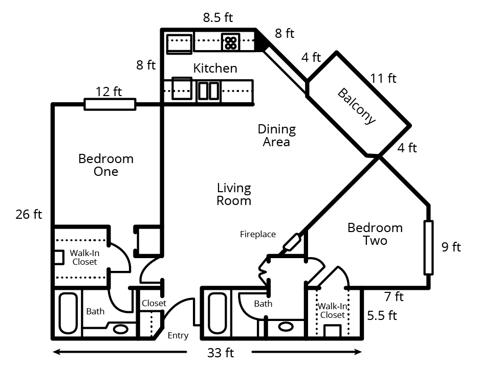
14.2: House Floorplan
Here is a floor plan of a house. Approximate lengths of the walls are given. What is the approximate area of the home, including the balcony? Explain or show your reasoning.

14.3: Area of Nevada
Estimate the area of Nevada in square miles. Explain or show your reasoning.

The two triangles are equilateral, and the three pink regions are identical. The blue equilateral triangle has the same area as the three pink regions taken together. What is the ratio of the sides of the two equilateral triangles?

Summary
We can find the area of some complex polygons by surrounding them with a simple polygon like a rectangle. For example, this octagon is contained in a rectangle.
The rectangle is 20 units long and 16 units wide, so its area is 320 square units. To get the area of the octagon, we need to subtract the areas of the four right triangles in the corners. These triangles are each 8 units long and 5 units wide, so they each have an area of 20 square units. The area of the octagon is \(\displaystyle 320 - (4 \boldcdot 20)\) or 240 square units.

We can estimate the area of irregular shapes by approximating them with a polygon and finding the area of the polygon. For example, here is a satellite picture of Lake Tahoe with some one-dimensional measurements around the lake.
The area of the rectangle is 160 square miles, and the area of the triangle is 17.5 square miles for a total of 177.5 square miles. We recognize that this is an approximation, and not likely the exact area of the lake.
